• Home Page
  • Architecture
  • Digital Fabrication
  • Films
  • Photography
  • Ske-trations
  • Publications
  • About
  • Contact
Your Site Title
  • Home Page
  • Architecture
  • Digital Fabrication
  • Films
  • Photography
  • Ske-trations
  • Publications
  • About
  • Contact

Hammarskjold Plaza

A Case Study set for a commercial and business high rise in New York City.

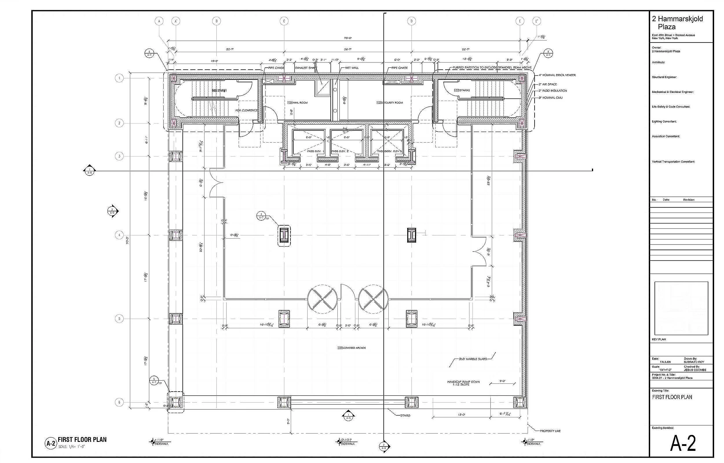
AR400_FIRST FLOOR PLAN-7x11.jpg
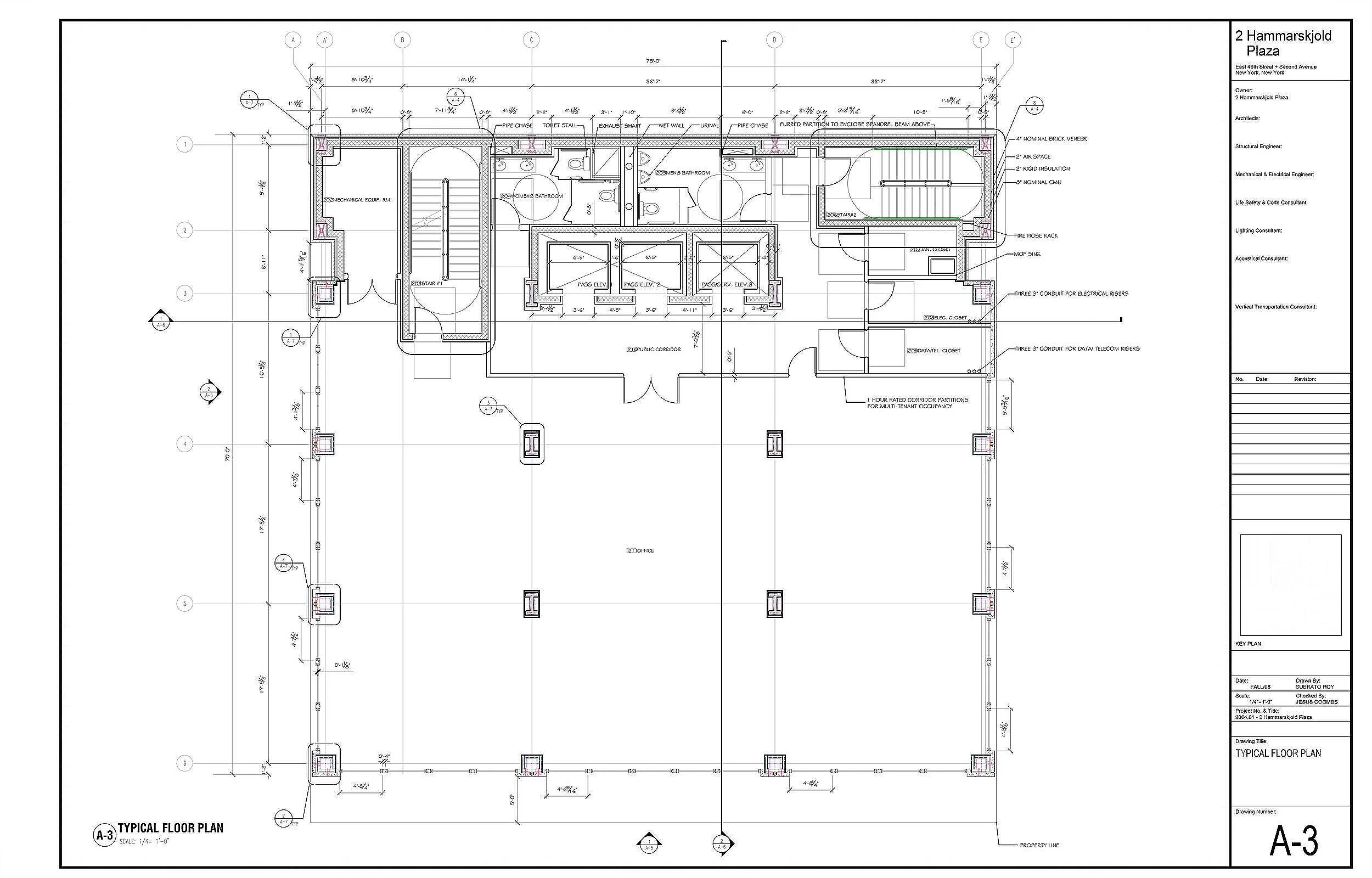
AR400_TYPICAL FLOOR PLAN-7X11.jpg
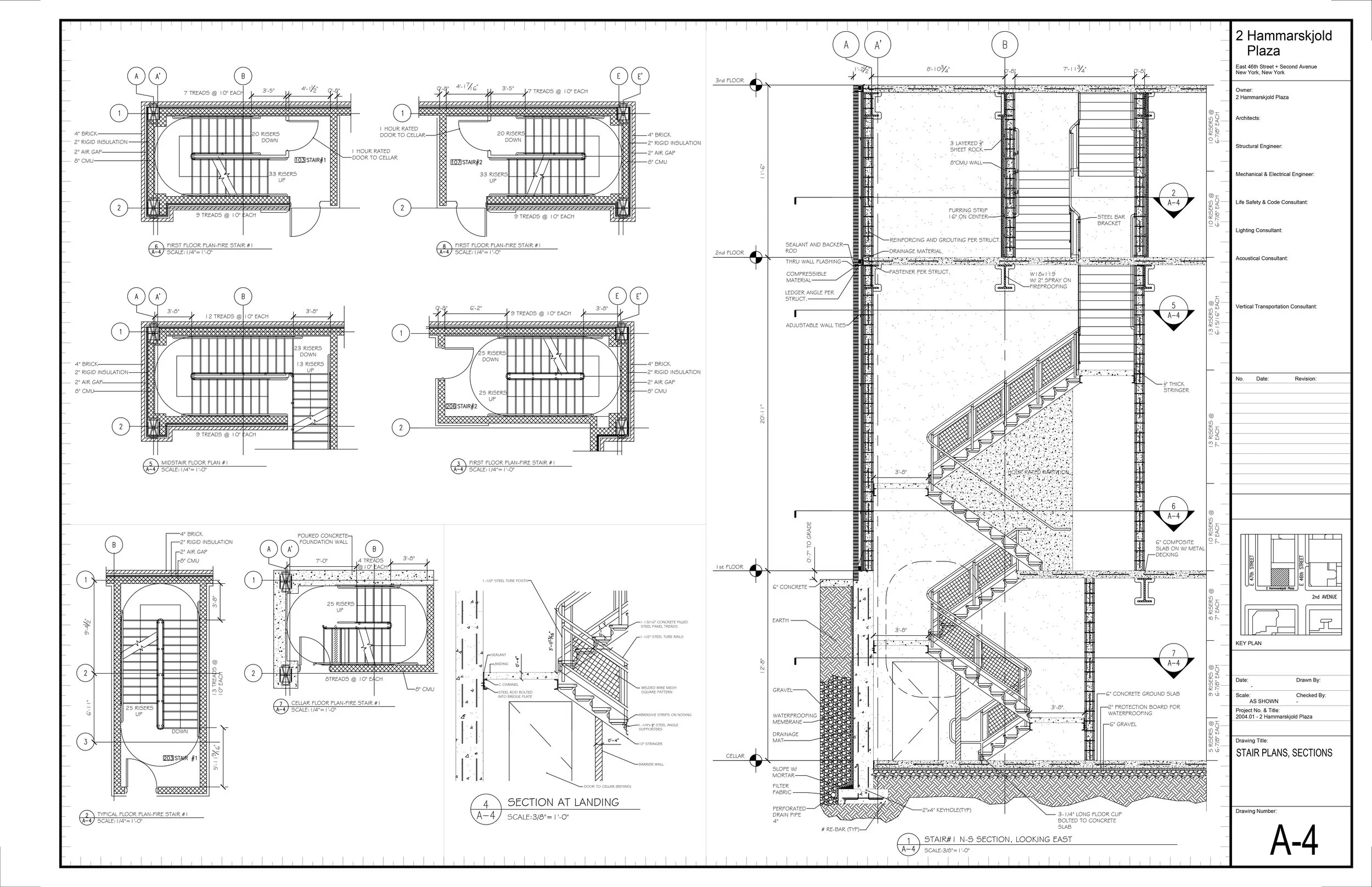
AR400_ STAIR PLANS SECTION & DETAILS-34x22.jpg
AR400- BUILDING ELEVATIONS-7X11.jpg
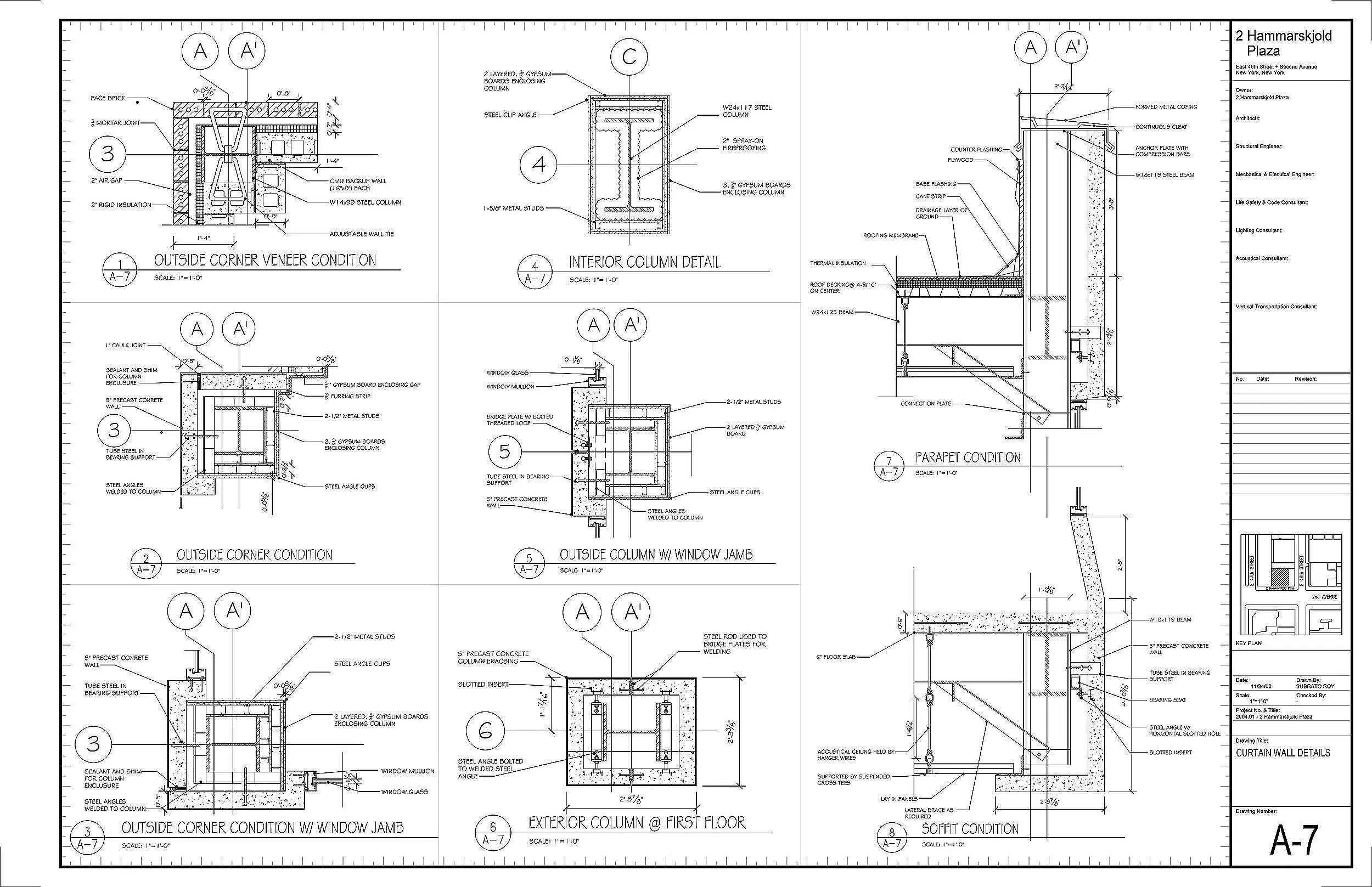
AR400_CURTAIN WALL DETAILS-7X11.jpg
AR400_TYPICAL STRUCTURAL FLOOR PLAN-7X11.jpg

Powered by Squarespace.